问题
-
某城市道路工程进行招标。A单位中标后与发包方签订了施工合同准备施工。首先由项目经理部索取设计
-
背景某机场施工单位中标一项机场场道工程 项目经理组织项目部有关人员编制该场道工程的施工组织设计。在
-
施工图设计交底的目的是设计单位向施工单位和监理单位进行()和说明。
-
施工图设计交底的目的是设计单位向施工单位和监理单位进行( )和说明。
-
某机场施工单位中标一项机场场道工程 项目经理组织项目部有关人员编制该场道工程的施工组织设计。在施工
-
分别说明事件5中甲施工单位和乙施工单位的解释有何不妥?对甲施工单位和乙施工单位工程档案中存在的问题 项目监理机构应如何处理?
12,116.80m。HPB235:
6.5,122.64m。 矩形梁为C20混凝土,钢筋HRB335:
14,18.41kg。HPB235:
12,9.02kg。HPB235:
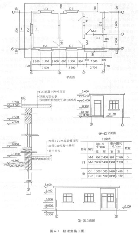
6.5,8.70kg。 (二)施工图 经理室施工图如图6—1所示。
问题 根据《建设工程工程量清单计价规范》完成工程量清单计算表(见表6-1)。 表6-1工程量清单计算表 工程名称:经理室工程 
冀公网安备 13070302000102号